Project
Arome Bakery Duke Street
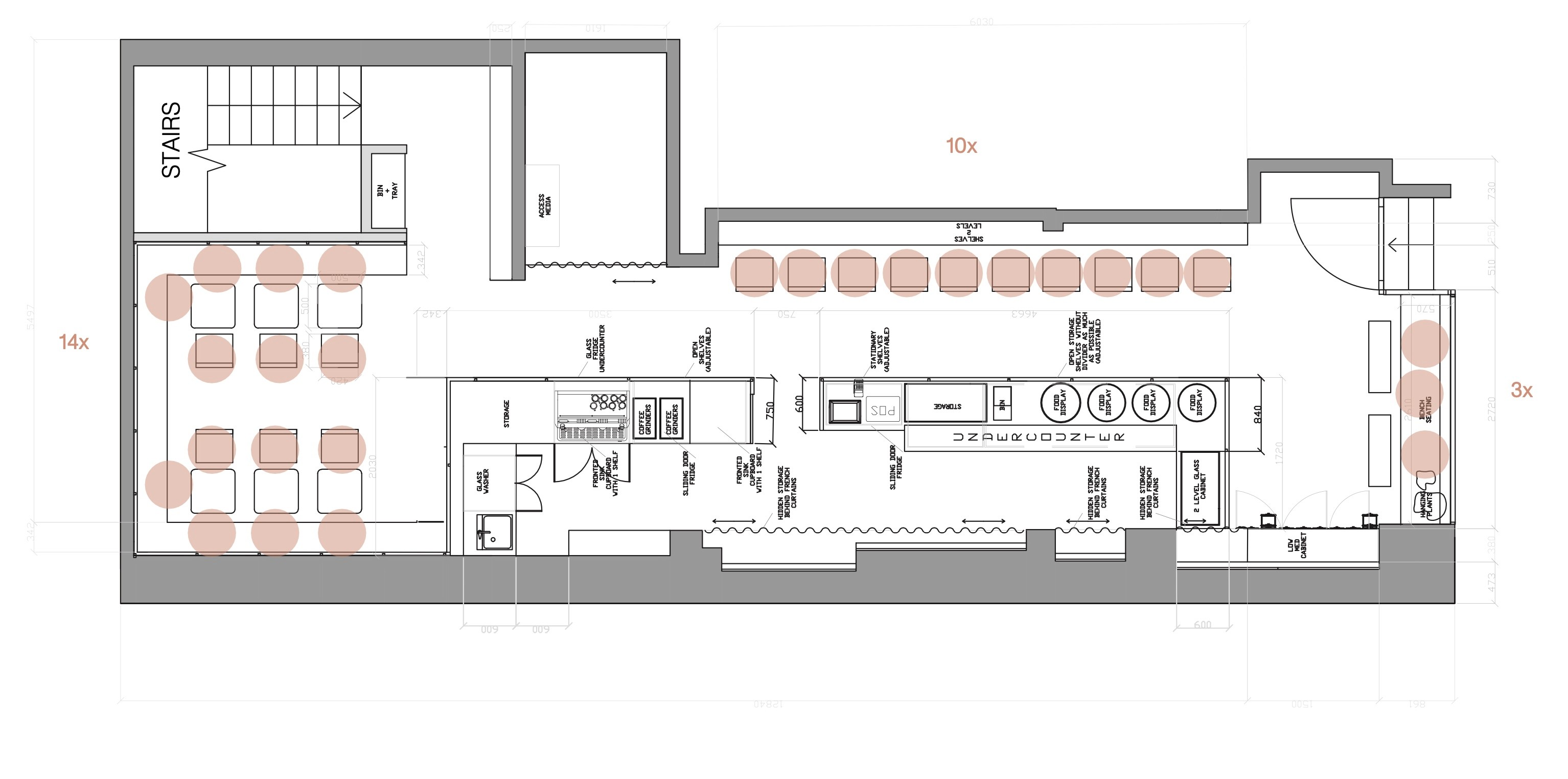
We had the pleasure of leading the full interior renovation of Arome Bakery, transforming the space into a warm and inviting environment that reflects the bakery's artisanal character. Our approach combined natural materials, refined craftsmanship, and timeless design to create an atmosphere where customers can slow down and enjoy.
The project features custom-made walnut joinery throughout, including counters, shelving, and seating areas, all meticulously crafted to showcase the beauty of natural wood grain. The combination of soft, neutral wall tones and herringbone oak flooring enhances the airy, organic feel of the space.
Careful attention was given to lighting, layout, and material selection to ensure the space feels both functional and welcoming






















