Project
Shan Shui Social Victoria
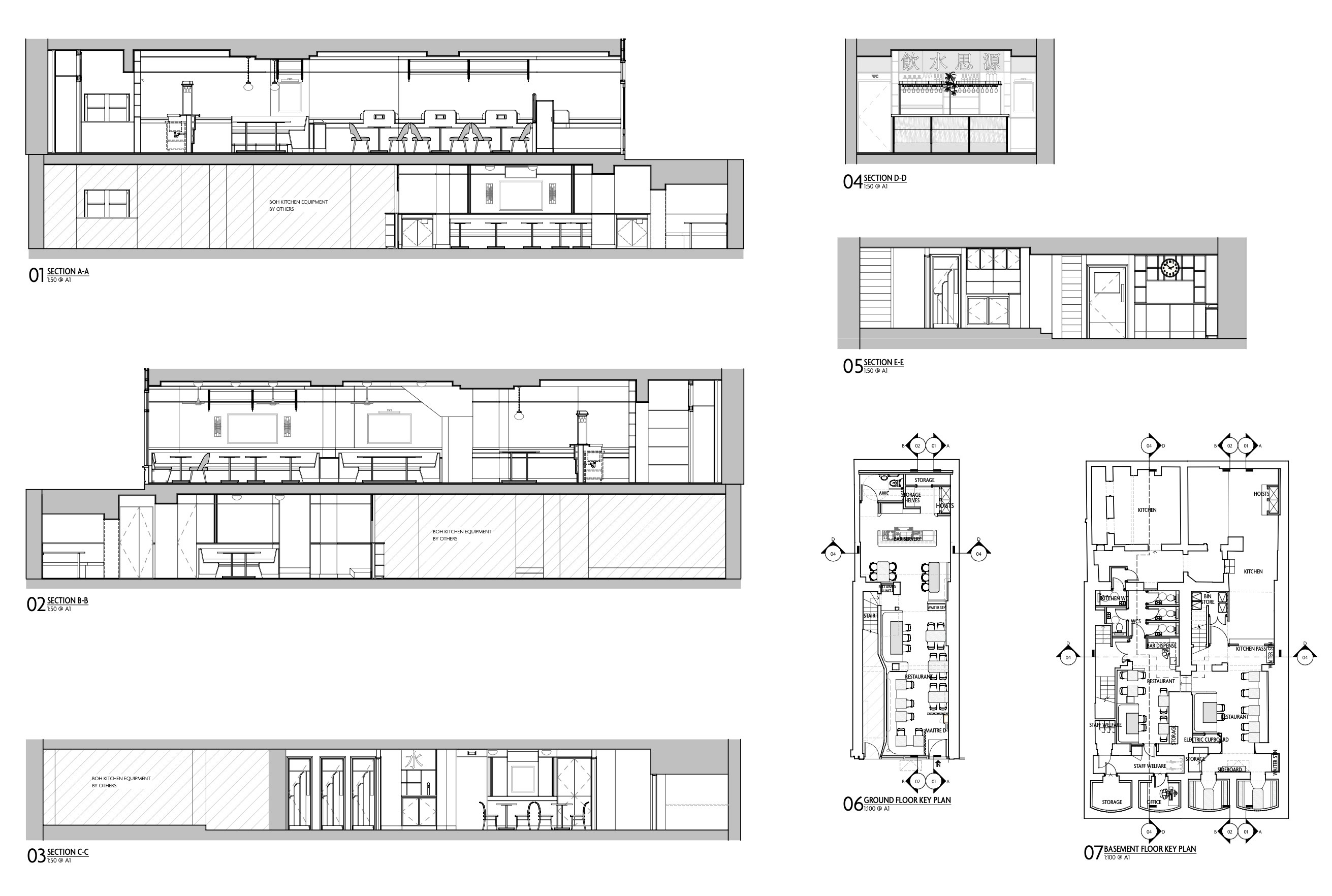
Inspired by the golden age of 1920s Shanghai, the restaurant transports diners to an era of glamour, artistry, and bold flavours. Shan Shui Social offers a sophisticated yet casual dining experience. The interiors reflect the charm of old Shanghai's art deco scene with warm wood tones, intricate wallpaper, ambient lighting, and vintage accents creating an intimate, elegant atmosphere.


























