Project
Singapulah
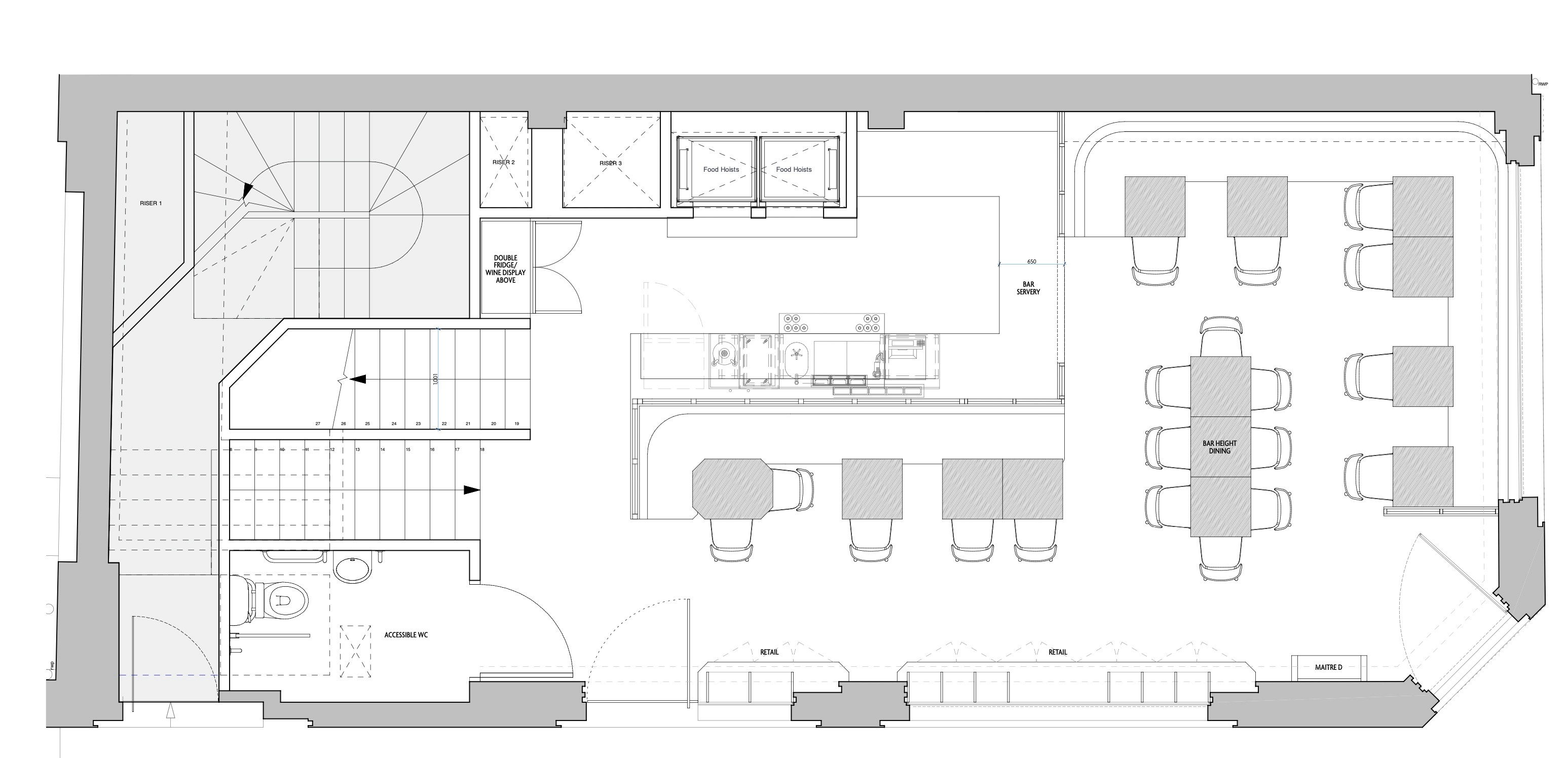
Singapulah is a vibrant new Singaporean restaurant in the heart of London. The space was created with a complete interior fit-out that blends nostalgic elements with a contemporary sensibility. Handcrafted timber partitions with vintage-inspired glass panels, custom terrazzo tabletops, and meticulously installed mosaic floor tiles were chosen to evoke a warm, familiar atmosphere.
A pastel colour palette, soft seating, and curated lighting were incorporated to complement the overall design concept, resulting in a welcoming environment that reflects the spirit of Singapore in a modern London setting.






















