Project
Packington Street 2
Discover this beautifully reimagined property where contemporary design meets practical living. Renovated to the highest standard, this home showcases clean lines, clever use of space, and sophisticated material choices, creating a calm, refined environment throughout.
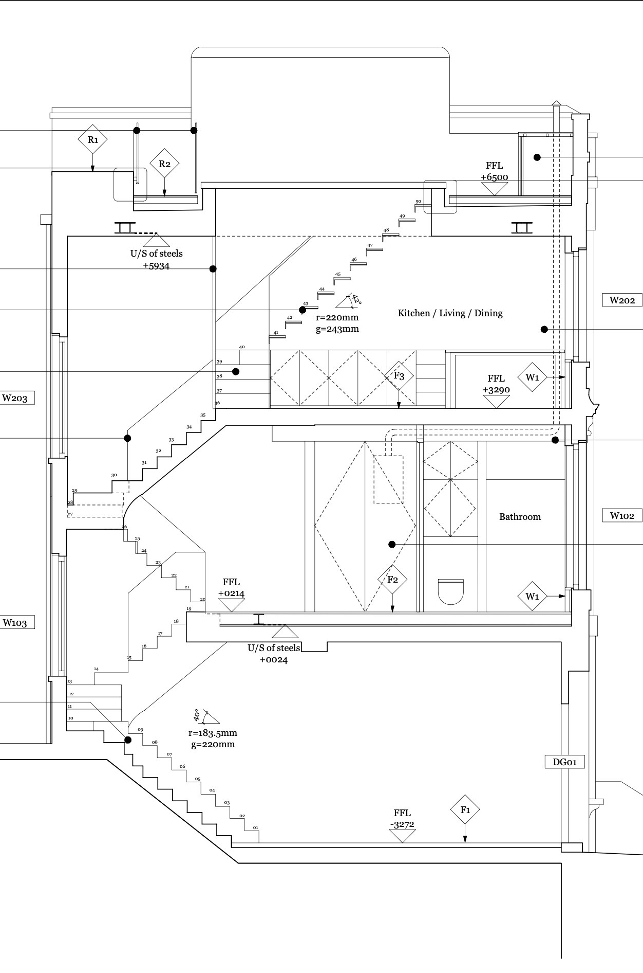
The heart of the home offers open, light-filled living areas with custom-built storage and shelving that blend seamlessly into the architecture. The striking floating staircase is not just a feature but a statement of minimalist design and engineering excellence.
The rooftop terrace offers private outdoor living with built-in cabinetry and a sleek worktop ideal for alfresco dining or entertaining while enjoying panoramic views across the city skyline.
This home has been thoughtfully renovated for modern living blending comfort, design integrity, and outdoor space in one exceptional package.




















